Разработка КМД

 Разработка КМД
Разработка конструкторской документации КМД мостовых и строительных конструкций.
отзывов пока нет
+7 (951) 765-68-38
Белгородский проспект, д. 103, Белгород, 309340
Белгородский проспект, д. 103
Белгородская область, Белгород, Россия, 309340
Показать на карте
Как добраться

Часы работы

Открыто до 21:00 Закроется через 5 часов 28 минут

Понедельник-воскресенье – 9:00-21:00

Фотогалерея

  • Фото компании  Разработка КМД 1
  • Фото компании  Разработка КМД 2
  • Фото компании  Разработка КМД 3
  • Фото компании  Разработка КМД 4
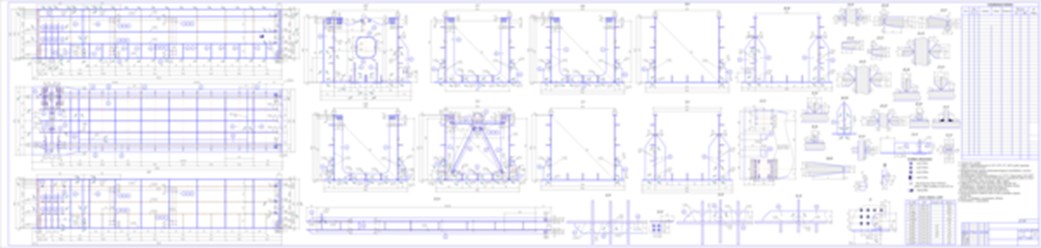
  • Мост через реку Днепр
    Мост через реку Днепр

Отзывы о Разработка КМД

К сожалению, нашими пользователями пока еще не было оставлено ни одного отзыва о компании Разработка КМД. Вы можете быть первым и оставить свой отзыв:

Поставьте свою оценку
Написать отзыв

О компании

Разработка конструкторской документации КМД мостовых и строительных конструкций.
Чертежи КМД основных и вспомогательных конструкций мостов и строительных конструкций, монтажно-маркировочных схем, расчет метизов, 3D сборки для роботов, оформление контуров для кроя и резки металла и др.
Полное соответствие всем требованиям нормативных документов ГОСТов, Снипов, СТО, ДСТУ и.т.д
Разработка в программах Tekla structures, Компас 3D

Фото

Товары и услуги

Разработка конструкторской документации КМД мостовых и строительных конструкций.
Чертежи КМД основных и вспомогательных конструкций мостов и строительных конструкций, монтажно-маркировочных схем, расчет метизов, 3D сборки для роботов, оформление контуров для кроя и резки металла и др.
Полное соответствие всем требованиям нормативных документов ГОСТов, Снипов, СТО, ДСТУ и.т.д
Разработка в программах Tekla structures, Компас 3D

Кратко об организации

Фирма Разработка КМД из Белгорода предоставляет заказчикам товары и услуги в 2 направлениях, в том числе Машиностроительные предприятия, Конструкторские бюро. Компанию можно найти по адресу Белгородский проспект, д. 103 в Белгороде. Связаться с представителем организации Разработка КМД по интересующим Вас вопросам вы можете по телефону +7 (951) 7656838, в социальной сети , на сайте dkb-project.ru, по e-mail kmd-pro@mail.ru.

Похожие компании поблизости

Оставьте отзыв первым
+7 (4722) 551888
Харьковский пер, 36г